Hală Frigorifică 1000mp cu spațiu birouri in Zona Industrială

5.500€ / luna + TVA
ID:378  Sibiu,  Hornbach, 96 afisari

Descriere hala

🏢 Oportunitate Închiriere: Hală Frigorifică & Spațiu Birouri – Sibiu (Zona Industrială)

Vă oferim spre închiriere un imobil industrial complet echipat (Hala C2), situat într-o locație strategică din Sibiu, ideal pentru activități de depozitare cu regim termic, logistică sau producție alimentară/farmaceutică.

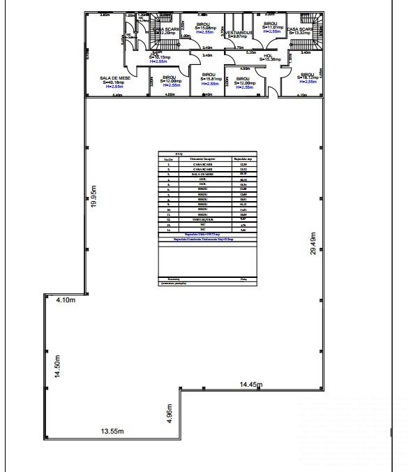
📐 Detalii Suprafață și Compartimentare

Proprietatea este dispusă pe Parter + Etaj, oferind un flux operațional optimizat între zona de depozitare și cea administrativă.

1. Parter (Zonă Operațională):

  • Suprafață Utilă Hală: 970.23 mp (Hala Multifuncțională).
  • Înălțime liberă: Între 7.80 m și 8.80 m, ideală pentru depozitare pe rafturi înalte.
  • Zonă recepție/încărcare: Acces facil pentru marfă.

2. Etaj (Zonă Administrativă & Socială):

  • Birouri moderne: Compartimentate strategic pentru management și secretariat.
  • Sală de mese: Spațioasă (40.18 mp), oferind confort angajaților.
  • Vestiare și dușuri: Dotate conform normelor sanitare în vigoare.
  • Grupuri sanitare și holuri de acces: Circuite separate.

❄️ Dotări și Avantaje Tehnice

  • Sistem Frigorific: Spațiu izolat termic, pretabil pentru controlul temperaturii.
  • Platformă Betonată: Acces facil pentru camioane de mare tonaj (TIR).
  • Parcare proprie: Suprafață generoasă de teren liberă conform extrasului CF (teren total incintă 5.635 mp).
  • Utilități complete: Energie electrică (putere instalată mare), gaz, apă, canalizare.
  • Vizibilitate și Acces: Situată într-o zonă cu acces rapid către principalele noduri rutiere și autostradă.

💼 Destinații recomandate:

  • Depozit produse congelate sau refrigerate.
  • Centru de distribuție FMCG.
  • Unitate de producție cu necesar de climatizare.
  • Hub logistic regional.

📞 Contact și Vizionări

Pentru detalii suplimentare și programarea unei vizionări, vă stăm la dispoziție la : 0720776900 Mirela Voicu

  • Locație: zona Nord Sibiu, Jud. Sibiu

 

Caracteristici hala

  • Numar Camere: 6
  • Zona: Hornbach
  • Suprafata utila: 1100 mp
  • Reper: Hornbach
  • Tip Spatiu: Constructie separata
  • Structura: Metal
  • Curte: 4000 mp
  • An Constructie: 2018

Caracteristici generale hala

  •  Acces Spatii:Acces Stradal Pietonal Auto Marfa
  •  Acoperis:Tabla
  •  Calorifere:Aluminiu
  •  Destinatie Spatii:Hala productie Reprezentanta
  •  Dispunere Spatii:Compartimentat
  •  Dotari Birouri:Sistem alarma Prize voce-date
  •  Ferestre Casa:Term. PVC
  •  Incalzire Casa:Centrala pe gaz
  •  Materiale:Panouri Sandwich
  •  Mobilat Spatii:Nemobilat
  •  Pereti:Faianta Lavabil
  •  Plansee:Tavan casetat Metal
  •  Podele:Gresie Podea flotanta
  •  Servicii birouri:Contorizare separata
  •  Stadiu Finisare:Finisat
  •  Strazi:Mijloace de transport in comun Iluminat stradal Asfaltate
  •  Structura Casa:Metal
  •  Usi:PVC
  •  Utilitati:Curent Gaz Canalizare Apa Cablu TV Curent trifazic
  •  Vecinatati Spatii:Zona comerciala Trafic Pietonal Intersectie circulata Benzinatie Mall

Harta

Tel: 0720776900 whatsapp